náhledy
Mladý pár si pořídil byt v novém developerském projektu v pražské Michli. Dispozice 3+kk s terasou jim vyhovovala, ale potřebovali celý prostor šikovně zařídit. Úkolu se ujali architektka Zuzana Řepíková a Ondřej Krynek z pražského studia DesignPro.
Autor: DesignPro
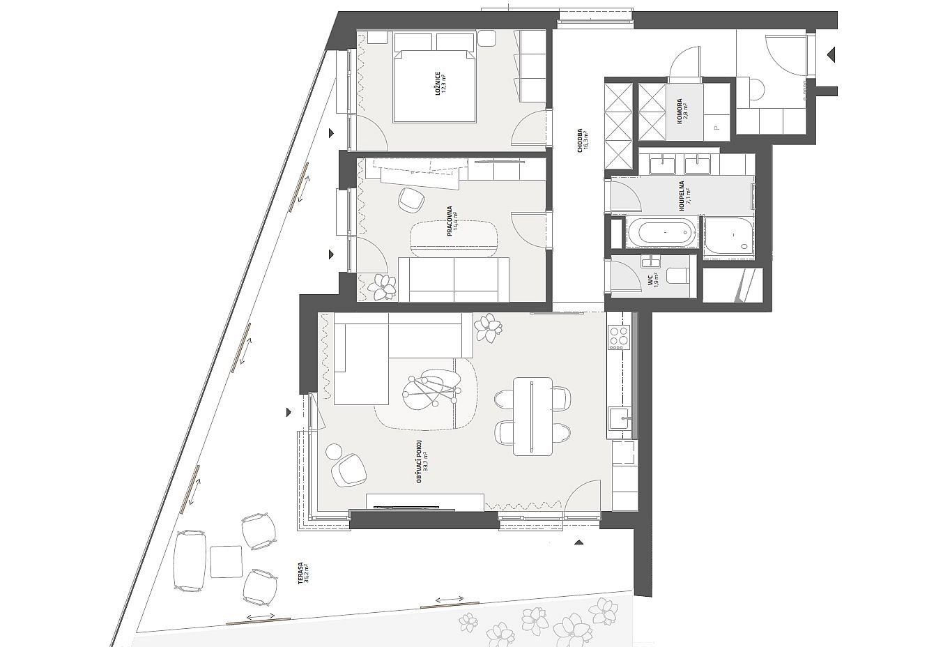
Dispozice bytu s obytnou plochou 92 metrů čtverečních a terasou velkou 35 metrů čtverečních majitelům vyhovovala a nebylo ji nutné upravovat.
Autor: DesignPro
„Klienti si přáli vytvořit domov, ve kterém zatím dětský pokoj nahradí pánská pracovna,“ vysvětluje architektka Zuzana Řepíková.
Autor: DesignPro
„Interiér chtěli ladit spíše do tmavých barev, ale jinak nechali návrh kompletně na nás,“ doplňuje.
Autor: DesignPro
A tak vznikl interiér v nadčasové šedé a černé, které společně vhodně doplňují použité dřevo na podlaze a nábytku.
Autor: DesignPro
Byt je ze dvou stran lemován velkou krytou terasou se zelení, na kterou lze vstoupit z každého pokoje.
Autor: DesignPro
Terasu stíní dřevěný pojízdný lamelový rošt.
Autor: DesignPro
Záměrem bylo maximální propojení interiéru s exteriérem.
Autor: DesignPro
Proto autoři vtáhli dřevěné rošty do interiéru v podobě dubových obkladů, které jsou v každé obytné místnosti, aby tvořily s terasou jeden celek.
Autor: DesignPro
“V pracovně jsme namořili obklad na černo, aby pokoj získal pánský nádech a odlišil se od zbytku bytu,“ vysvětluje Ondřej Krynek.
Autor: DesignPro
Originální je dvojice konferenčních stolků v obývacím pokoji. Klienti chtěli něco vlastního, osobního, s příběhem, a tak návrháři jezdili po kamenictvích a hledali ten správný kámen s tou správnou kresbou.
Autor: DesignPro
„V kuchyni jsme navrhli větší hloubku pracovní desky. Tím nám vznikl za skříňkami prostor pro vedení nových instalací a majitelé se vyhnuli zasekávání rozvodů,“ říká architektka.
Autor: DesignPro
Hlubší pracovní plochu využili pro umístění dřevěného truhlíku, ve kterém jsou skryty elektrické zásuvky a můžou se zde umístit například bylinky a kořenky.
Autor: DesignPro
Rafinovaně skryté úložné prostory jsou i ve skříních v chodbě, například skryté v nice.
Autor: DesignPro
Vybavení na míru se dočkala i koupelna.
Autor: DesignPro
