náhledy
Manželé, kteří čtyřicet let dřeli na rodinné farmě, se na důchod rozhodli pro radikální změnu. Statek předali mladší generaci a postavili si pro sebe bezbariérovou vilu, ve které hodlají prožít celý zbytek života. Dům pro odpočinek vyrostl v městečku Flinders, hodinu jízdy z australského Melbourne.
Autor: Bower Architecture
Klidné útočiště pro své nové bydlení hledali Peter a Michelle Wilsonovi dlouho, ale trpělivost se vyplatila. Nakonec našli parcelu ve vinařském městečku Flinders, hodinu jízdy z Melbourne na poloostrově Mornington. Město, které v sezóně zaplaví turisté, je plné galerií, kaváren, obchodů se starožitnostmi a butiků a dokonale splňuje jejich představy o trávení volného času.
Autor: Bower Architecture
Majitelé vyměnili zemědělské lány za pozemek o rozloze necelých dva tisíce metrů čtverečních. Sousedé jsou v podobném věku – v sedmdesátých letech minulého století zde vyrostly přívětivé dřevěné moderní bungalovy, na které se snažili navázat i Peter s Michelle.
Autor: Bower Architecture
Ačkoliv je dům bezbariérový, majitelé si nechali na konci domu vystavět skromné, ale funkční schodiště vedoucí na střešní terasu, odkud se mohou sami kochat výhledy do zeleného okolí.
Autor: Bower Architecture
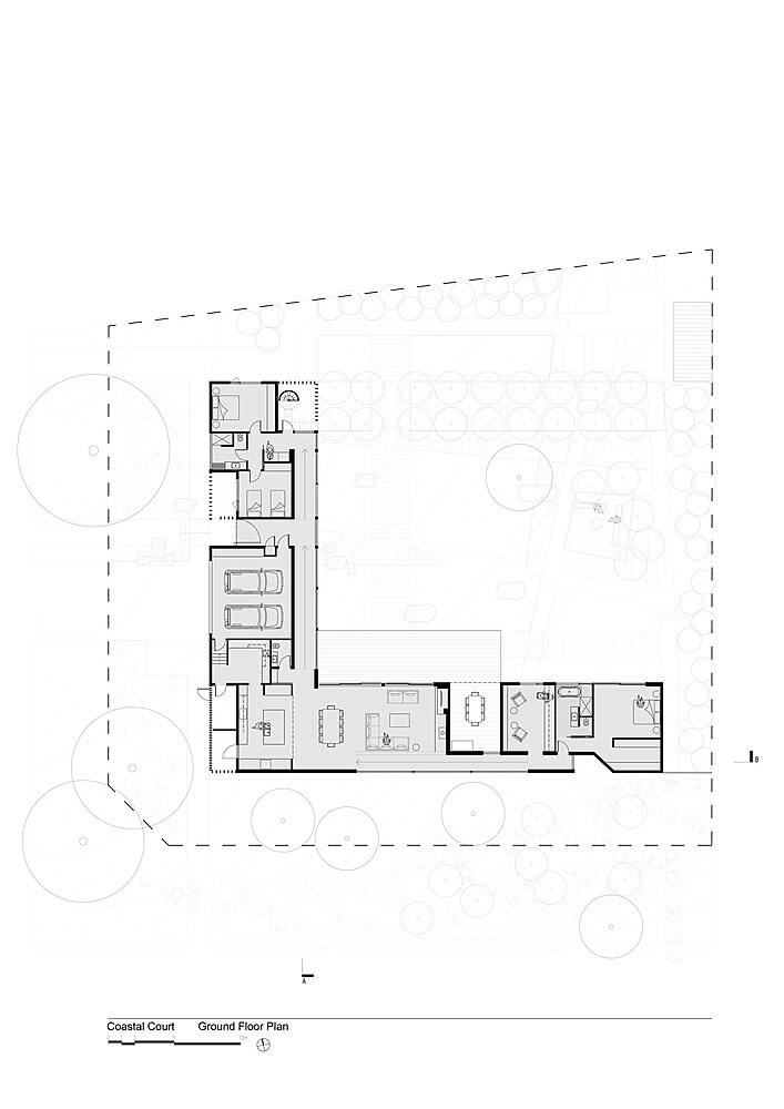
Moderní vilka v jednoduchém rytmu střídá dřevěné panely fasády s velkými prosklenými plochami. Stavba je rozčleněna do tří pomyslných zón: hostinské pokoje s točitým schodištěm na vyhlídku na jednom konci domu od ložnice majitelů na druhém konci vilky odděluje vstupní část s garážemi a společenským prostorem.
Autor: Bower Architecture
V zahradě se našlo nespočet relaxačních koutů a zastavení. Paní domu dnes pěstuje květiny pro vlastní potěchu, záhony sousedí s intimními posezeními, jako je například jednoduché sezení u otevřeného ohniště.
Autor: Bower Architecture
Architekti pracovali v úzkém spojení s firmou Laidlow, projektující a realizující zahrady. Taková spolupráce je standardem australských novostaveb a díky tomu vznikají ucelené domy – zde již od brány vítá příchozí elegantní mix přírody a intimity a odkazuje k celkovému charakteru domu.
Autor: Bower Architecture
Architekti plně využili zdánlivého handicapu pozemku, který se postupně svažuje a byl divoce zarostlý – možná i proto dlouho zůstával navzdory okolní zástavbě opuštěný. Do svahu zabudovali rampu v galerii, která vtipně vyrovnává terén.
Autor: Bower Architecture
Již samotný minimalisticky pojatý vstup do domu jasně signalizuje, co můžeme za vraty do vily čekat.
Autor: Bower Architecture
Střídmá barevná paleta v neutrálních tónech béžové a černé se střídá s kvalitními a nákladními přírodními materiály, jako je dřevo nebo kámen.
Autor: Bower Architecture
Michelle dělají největší radost procházky domem a zahradou za jakéhokoliv počasí. Z každého okna v domě vidí do jiného zákoutí zahrady a naopak, v zahradě se jí vždy odkrývá jiná, nová část domu.
Autor: Bower Architecture
Černá kuchyňská linka s ostrůvkem s kamennou deskou je pýchou paní domu. Jak zmiňuje, stavba této vily je jejich největší životní projekt.
Autor: Bower Architecture
Díky půdorysu vily do tvaru písmene L se podařilo architektům eliminovat jakékoliv výhledy na sousední domy. Majitelé se mohou kochat jen vlastní zelení.
Autor: Bower Architecture
V domě jsou celkem tři ložnice. Toto je výhled, se kterým manželé Wilsonovi vstávají každé ráno.
Autor: Bower Architecture
V celém domě není nouze o zajímavé umělecké artefakty a vtipné suvenýry z cest. Na podlahách jsou položeny originální ručně vázané koberce, na chodbě je socha žabáka se slunečníkem.
Autor: Bower Architecture
Studovna s knihovnou sousedí s krytou terasou a obývacím pokojem. Je Peterovým absolutním hájemstvím, ve kterém rád tráví tiché a klidné chvíle.
Autor: Bower Architecture
Majitelé si pochvalují dům do posledního detailu, rádi však vzpomínají i na samotný proces tvorby projektu a výstavby. To bývá poměrně výjimečné, v tomto případě si investoři s architekty dokonale padli do noty a nechali se s důvěrou vést.
Autor: Bower Architecture
Ve vile jsou celkem tři koupelny. Materiálově se zcela shodují, co do prostoru a vybavení je ovšem samozřejmě nejluxusnější lázeň přiléhající k ložnici majitelů, ve které je samostatně stojící vana i sprcha s výhledem do zeleně.
Autor: Bower Architecture
Půdorysné řešení vily
Autor: Bower Architecture
Řez domem
Autor: Bower Architecture
Řez domem
Autor: Bower Architecture
